Funkcjonalne (niezbędne)
Analityczne
Marketingowe

Drewniany dom blisko Sanoka w świetnej cenie Sanok (gw), Zabłotce

2 pokoje
75.00 m²
3 999,99 zł/m2
DELI-DS-469
Oblicz ratę kredytu

299 999 zł

Drewniany dom blisko Sanoka w świetnej cenie
Oferta na wyłączność

Szczegóły oferty

Symbol oferty DELI-DS-469
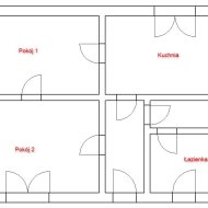
Powierzchnia 75,00 m²
Powierzchnia działki [m2] 2 000 m²
Liczba pokoi 2
Rodzaj domu jednorodzinny
Instalacje ELEKTRYCZNA, GAZOWA
Zagosp. działki niezagospodarowana
Ukształtowanie działki lekko nachylona
Kształt działki nieregularny
Pokrycie dachu blacha
Stan budynku do remontu
Ogrodzenie działki mieszane
Gaz jest
Woda jest
Ogrzewanie C.O. GAZOWE
Umeblowanie częściowo umeblowane
Prąd jest
Kanalizacja tak
Pomieszczenia
Liczba WC 1

Opis nieruchomości

Biuro DELIMART nieruchomości ma przyjemność zaprezentować Państwu ofertę sprzedaży drewnianego domu na działce 20a, w Zabłotcach, gmina Sanok. 

DZIAŁKA:
☑️ powierzchnia działki 2000 m2
☑️ powierzchnia użytkowa domu 75 m2
☑️ powiat Sanocki
☑️ gmina Sanok
☑️ miejscowość: Zabłotce 
☑️ numer działki  -  118
☑️ Sposób korzystania - B tereny mieszkaniowe / RIIIa - grunty orne 

MEDIA:

☑️ prąd - na działce
☑️ gaz - na działce
☑️ kanalizacja - na działce
☑️ wodociąg - na działce 

LOKALIZACJA:

☑️ działka w dobrej lokalizacji,  z dostępem do asfaltowej drogi 
☑️ dobre skomunikowanie z Brzozowem i Sanokiem 
☑️ okolica domów jednorodzinnych 

DODATKOWE INFORMACJE:

Drewniany dom z piwnicą, kryty blachą, okna PCV, budynek do odświeżenia lub generalnego remontu. Świetna lokalizacja na przedmieściach Sanoka, szybki dojazd do miasta a zarazem spokojna i cicha okolica. Duża działka w całości uwzględniona pod zabudowę z miejscem na ogród, duży garaż i altanę. 

Serdecznie zapraszamy do obejrzenia nieruchomości

CENA:
299.999 PLN

Jakub Szczęsny

Agent nieruchomości

+48 607 709 807
jakub@delimart.pl

DELIMART nieruchomości
ul. Podgórze 14
38-500 Sanok

Lokalizacja nieruchomości

Kalkulatory

Kalkulator kredytowy

Wysokość raty

PLN
%

Agent nieruchomości

Proszę wprowadzić poprawne imię i nazwisko
Proszę wprowadzić poprawny numer telefonu
Proszę wprowadzić poprawny adres e-mail
Proszę zaznaczyć wymagane zgody
Rozwiąż równanie:
12 6
Niepoprawny wynik